Belvárosi "közösségi tér"

Leírás

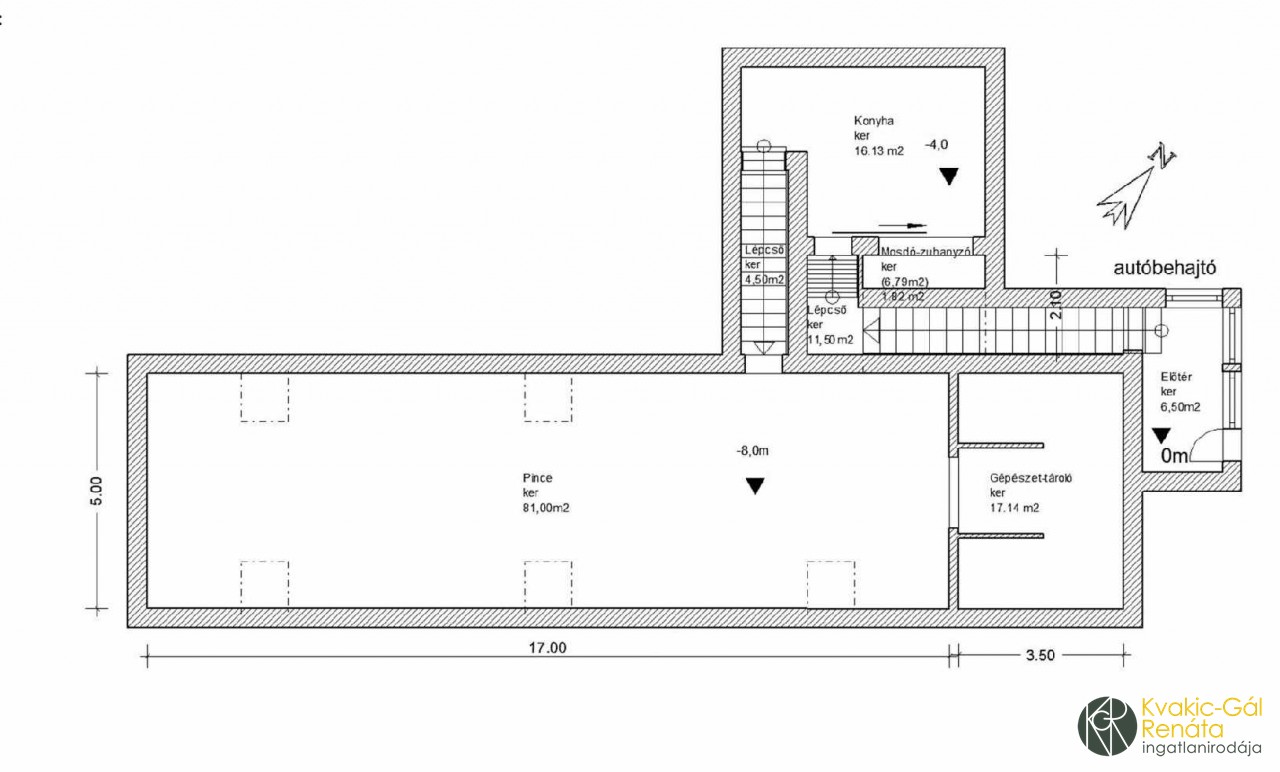
Pécs Belvárosában az Alkotmány utcában ingatlan eladó, pince szinten kialakított  közösségi térrel!
Az ingatlan bejárata az utca fronton található. Előtérből lépcső vezet az agagsori szintre, ahol egy konyha és egy zuhanyzós fürdőszoba van kialakítva valamint innen indul a lépcső a pince szinten kialakított 81m2-es közösségi térbe. 
Az elmúlt években teljes felújításon esett át az ingatlan!

A pince fűtését is megoldották hagyományos tüzelésű kandallóra
csatlakoztatott padlófűtés rendszerrel. Belmagasság a pincében 3,50m.
A  terem szellőzéséről, párátalanításáról légtechnikai berendezés gondoskodik.

Kíváló lehetőség befektetőknek, vállalkozni kívánóknak! 
Céges rendezvények, baráti összejövetelek kiadására kiválóan alkalmas

Áttekintés

Cím Pécs, Alkotmány utca

Ár: 29,9  MFt

Kategória:   Eladó  

Ingatlan típusa:   Üzlethelyiség  

Vármegye: Batanya

Város: Pécs

Méret: 140 m2

Ingatlan állapota:   Felújított  

Fürdőszobák: 1

Parkolóhely típusa:   Utca közterület  

Épület szintjei:   2  

Emelet:   Mélyföldszint  

Fürdő és WC:   Fürdő- WC egyben  

Fűtés:   Egyéb  

Lift:   Nincs  

Parkoló használata:   Fizetős övezet  

Épület szerkezete: tégla

Víz: van

Villany: van

Gáz: nincs

Csatorna: van

Megtekintve: 1351

 Nyomtatóbarát nézet

Közművek

  • Víz:  van
  • Villany:  van
  • Gáz:  nincs
  • Csatorna:  van

Elhelyezkedés

Galéria



Hirdető egyéb hirdetései

  • Pécs Belvárosában 

    300x200
    Nincs jelvény
    Kiadó
    Featured

    Pécs

    Ingatlan típusa Iroda

    Méret 120 nm

    Szobák száma 4

    1true

    igényes kialakítású iroda

    350000 Ft  Részletek

  • TELEPHELYNEK 

    300x200
    Nincs jelvény
    Eladó
    Featured

    Komló

    Ingatlan típusa Mezőgazdasági

    Méret 750 nm

    mezőgazdasigi, ipari tevékenységre

    45 MFt Részletek

  • 6 háló + nappalis 

    300x200
    Nincs jelvény
    Eladó
    Featured

    Komló

    Ingatlan típusa Ház

    Méret 180 nm

    Szobák száma 5+

    2

    akár 2 generáció számára

    49,9 MFt Részletek

  • Pogányi zártkert 

    300x200
    Nincs jelvény
    Eladó
    Featured

    Pogány

    Ingatlan típusa Telek

    Méret 30 nm

    Szobák száma 2

     2 szintes épülettel, pincével

    17,8 MFt Részletek

  • Nyugati ipari parkban 

    300x200
    Nincs jelvény
    Kiadó
    Featured

    Pécs

    Ingatlan típusa Ipari

    Méret 1540 nm

    csarnok, irodával

    1925000 Ft  Részletek

  • Zalátán családi ház 

    300x200
    Nincs jelvény
    Eladó
    Featured

    Zaláta

    Ingatlan típusa Ház

    Méret 72 nm

    Szobák száma 2

    1

    2 hálós

    8,5 MFt Részletek

  • Mecsekjánosiban, 5 háló + nappalis családi ház 

    300x200
    Nincs jelvény
    Eladó
    Featured

    Komló

    Ingatlan típusa Ház

    Méret 120 nm

    Szobák száma 5+

    2

    Iparteleppel 

    85 MFt Részletek


Áttekintés

Cím Pécs, Alkotmány utca

Ár: 29,9  MFt

Kategória:   Eladó  

Ingatlan típusa:   Üzlethelyiség  

Vármegye: Batanya

Város: Pécs

Méret: 140 m2

Ingatlan állapota:   Felújított  

Fürdőszobák: 1

Parkolóhely típusa:   Utca közterület  

Épület szintjei:   2  

Emelet:   Mélyföldszint  

Fürdő és WC:   Fürdő- WC egyben  

Fűtés:   Egyéb  

Lift:   Nincs  

Parkoló használata:   Fizetős övezet  

Épület szerkezete: tégla

Víz: van

Villany: van

Gáz: nincs

Csatorna: van

Megtekintve: 1351

 Nyomtatóbarát nézet

Értékesítő

Üzenet